| Prijs | € 615.000,- k.k. |
| Type object | Woonhuis, herenhuis, hoekwoning |
| Perceeloppervlakte | 264 m² |
| Woonoppervlakte | 147 m² |
| Aanvaarding | In overleg |
| Status | Nieuw in verkoop |
Wonen in perfectie en sfeer … Op een prachtige hoeklocatie met een vrij uitzicht over een brede groene laan met bomen en water, staat deze stijlvolle hoekwoning met berging en zonnige tuin. De karaktervolle jaren dertig architectuur sluit naadloos aan op de charmante omgeving en geeft de woning een tijdloze uitstraling. Hier woon je op stand met alle voorzieningen op korte afstand. Binnen ervaar je direct de zorg en aandacht waarmee deze woning is gestileerd. Alles klopt: van het smaakvolle materiaalgebruik tot de harmonieuze kleurkeuze. De begane grond biedt een sfeervolle living en een tuingerichte woonkeuken met A-merk apparatuur. Op de eerste verdieping vind je drie formidabele slaapkamers en een luxe badkamer. De tweede verdieping voorziet in een was-/strijkkamer en de mogelijkheid om relatief eenvoudig een royale vierde slaapkamer te realiseren. Met een hybride warmtepomp en vloerverwarming beneden én op de slaapverdieping is het huis helemaal klaar voor de toekomst.
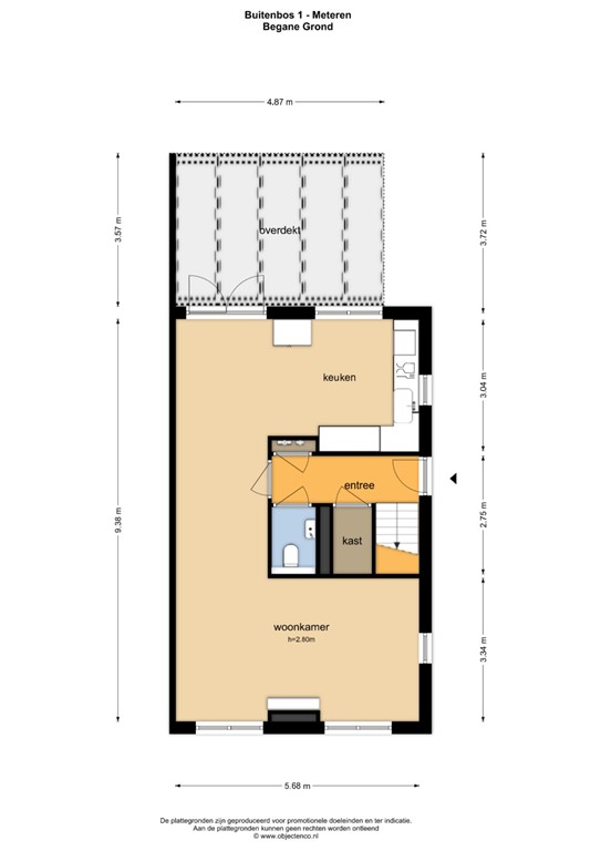
De ontvangsthal zet direct de toon: stijlvol en tot in detail verzorgd. Het daglicht stroomt prettig naar binnen via de voordeur met glasverdeling en laat de combinatie van het eikenlook laminaat en de botanische behangwand mooi tot zijn recht komen. De finishing touch wordt verzorgd door de luxe binnendeuren met rvs-beslag. Samen zorgen ze voor een uitnodigende entree, waar je je als het ware direct thuis voelt. In de hal bevinden zich de meterkast, trapopgang, trapkast en de moderne toiletruimte. De van origine open trap is door de huidige bewoners dichtgemaakt, waarbij een praktische trapkast is gerealiseerd die nu dienstdoet als garderobe. De moderne toiletruimte is voorzien van een wandcloset, fontein en mechanische ventilatie. De volledige begane grond is voorzien van vloerverwarming, waardoor je een aangenaam wooncomfort ervaart. Via een luxe deur met glasvensters betreed je het woongedeelte, dat is verdeeld in een living en een woonkeuken. Het taupekleurige behang met linnenstructuur zorgt voor een elegante woon-beleving. De living bevindt zich aan de voorzijde van het huis en voelt direct sfeervol aan. Grote raampartijen zorgen voor een prettige hoeveelheid daglicht en bieden een ruim uitzicht over je voortuin richting het groene straatbeeld van de Bentinckhof met bomen en een brede watergang. Met de houten jaloezieën doseer je het daglicht en je privacy eenvoudig naar wens. De stijlvolle schouw vormt een sfeervolle blikvanger en maakt deze ruimte helemaal af. De woonkeuken staat in dynamische open verbinding met de living en vormt een fijne plek om te koken en samen te zijn. Dankzij de openslaande deuren en de grote raampartij heerst er een sterke verbondenheid met de zonnige tuin. Het raam boven je werkblad biedt een leuk uitzicht op het straatbeeld van de Buitenbos. Een praktisch bijkomend detail is dat je bezoekers richting je voordeur kunt zien naderen. De taupekleurige vouwgordijnen zijn inclusief. De L-vormige keukenopstelling is uitgevoerd met mat witte kastenfronten, een betonlook werkblad en kwalitatieve inbouwapparatuur van “Miele”. Je beschikt over een 1,5 spoelbak, inductiekookplaat, rvs afzuigkap, combimagnetron en veel praktische laden en kastruimten. Let ook op de bovenkasten met melkglazen fronten en geïntegreerde verlichting, die de keuken een subtiele uitstraling geven en zorgen voor extra sfeer in de avonduren. De vrijstaande “Samsung” koel-/vriescombinatie maakt deze keuken compleet.
Vanuit de ontvangsthal brengt de trapopgang je naar de eerste verdieping, waar de mooie styling van beneden ook weer doorademt. Ook hier profiteer je van de voordelen van vloerverwarming, wat zorgt voor een hoogwaardig wooncomfort. De overloop is dankzij het aanwezige raam prettig licht en geeft toegang tot drie slaapkamers en de badkamer. De riante masterbedroom strekt zich uit over de volledige breedte van het huis en biedt een prachtig uitzicht over het groene straatbeeld met watergang. Hier kom echt tot rust. Met plisségordijnen en rolluiken op zonne-energie creëer je bovendien eenvoudig het perfecte slaapklimaat. De kastenwand is een échte eyecatcher en praktisch ingedeeld met hang-, leggedeelten en brede ladenkasten. Deze is ter overname. De tweede en derde slaapkamer liggen aan de achterzijde van het huis en kijken uit over de tuin en de woonomgeving. Dankzij de ligging op de zonzijde zijn de rolluiken hier een fijne toevoeging: ze helpen de warmte buiten te houden en zorgen voor een aangenaam en goed te verduisteren slaapklimaat. Beide kamers zijn daarnaast voorzien van plisségordijnen. In de tweede slaapkamer is bovendien een voorbereiding getroffen voor een wasmachine- en drogeraansluiting, waardoor je de mogelijkheid hebt deze naar hier te verplaatsen. De badkamer biedt luxe en comfort. Spoel de drukte van de dag van je af in de inloopdouche met glazen wand, thermostaatkraan en douchegarnituur. Verfris jezelf aan het eikenlook wastafelmeubel met keramiek wasbak, spiegelkast, stopcontact en ledverlichting. Het wandcloset maakt het sanitair compleet. De vloerverwarming, de designradiator en de mechanische ventilatie zorgen tenslotte voor een aangename temperatuur en een frisse atmosfeer.
Via een vaste trap bereik je de tweede verdieping. Bovenaan de trapopgang opent een deur naar de voorzolder. Wat hier direct opvalt, is de ruimte die het schilddak creëert: verrassend royaal en volop mogelijkheden. Ook op deze verdieping is de smaakvolle en verzorgde styling consequent doorgetrokken. De royale voorzolder is multifunctioneel. Met het plaatsen van dakvensters realiseer je hier eenvoudig een volwaardige vierde (slaap-)kamer. De aanwezige kastenwand, in dezelfde uitvoering als in de masterbedroom, is ter overname. In de technische ruimte bevinden zich de installaties van de “Alpha Innotec” hybride luchtwarmtepomp en de “Duco” mechanische ventilatie. De praktische witgoedkamer is ruim van opzet en voorzien van aansluitingen voor de wasmachine en droger, elk op een aparte groep. Er is daarnaast voldoende ruimte voor het plaatsen van kasten, de strijkplank en het wasrek. Het Velux-dakraam met hor zorgt hier voor prettig daglicht en ventilatie.
De voortuin is strak aangelegd met een combinatie van siergrind, keramische tegels en verhoogde plantenborders met olijfboompjes en lavendel, wat zorgt voor een verzorgd aanzicht vanaf de straatzijde. De erfafscheiding, uitgevoerd met gemetselde poeren en aluminium hekken, sluit naadloos aan bij de stijl van de omliggende woningen en draagt bij aan het fraaie en uniforme straatbeeld. De heerlijke achtertuin ligt op de zonnige zuidzijde. De aanleg is strak en doordacht, met grootformaat tegels, siergrind en een gazon van kunstgras, dat nauwelijks van echt te onderscheiden is. Zo geniet je van een verzorgde uitstraling zonder veel onderhoud. Groenblijvende beplanting zoals hedera en Portugese laurier geven de tuin een natuurlijk karakter. Direct aan de woning bevindt zich een royaal terras onder de aluminium veranda. Dankzij de glazen schuifpanelen zit je hier extra beschut en verleng je moeiteloos het buitenseizoen. Achterin de tuin ligt een tweede terras, perfect voor een kop koffie in de ochtendzon. Ook in de avond is het hier volop genieten. Met de gevellamp en de ledspots in de liggende delen van de veranda creëer je in een handomdraai een sfeervolle ambiance. Praktisch is de aanwezigheid van een buitenkraan. De houten berging is voorzien van elektra en verlichting en is ideaal voor het stallen van fietsen en het opbergen van (tuin)gereedschap.
ALGEMEEN Een instapklare en sfeervolle hoekwoning op een prachtige locatie. Hier woon je comfortabel en toekomstgericht, met een hoogwaardige afwerking, moderne voorzieningen en een zonnige tuin met veranda. DE PLUSPUNTEN -Instapklare hoekwoning in jaren dertig stijl -Sfeervolle living met ruim uitzicht over de groene laan met waterpartij -Tuingerichte woonkeuken met “Miele” inbouwapparatuur -Drie slaapkamers en mogelijkheid tot vierde -Moderne en luxe badkamer -Verwarming via de hybride luchtwarmtepomp -Vloerverwarming op begane grond en eerste verdieping -Zonnige tuin op het zuiden met veranda -Nabij voorzieningen en snelwegen A2 en A15
| Referentienummer | 06031 |
| Vraagprijs | € 615.000,- k.k. |
| Inrichting | Niet gestoffeerd |
| Inrichting | Niet gemeubileerd |
| Status | Nieuw in verkoop |
| Aanvaarding | In overleg |
| Aangeboden sinds | Donderdag 30 april 2026 |
| Type object | Woonhuis, herenhuis, hoekwoning |
| Soort bouw | Bestaande bouw |
| Bouwperiode | 2019 |
| Dakbedekking | Bitumen Dakpannen Keramisch |
| Type dak | Schilddak |
| Keurmerken | Energie prestatie advies |
| Isolatievormen | Ankerloze spouwmuren Dakisolatie Dubbel glas HR-glas Muurisolatie Spouwmuren Vloerisolatie Volledig geïsoleerd |
| Perceeloppervlakte | 264 m² |
| Woonoppervlakte | 147 m² |
| Woonkameroppervlakte | 27 m² |
| Keukenoppervlakte | 17,27 m² |
| Inhoud | 517 m³ |
| Oppervlakte externe bergruimte | 6 m² |
| Oppervlakte gebouwgebonden buitenruimte | 17 m² |
| Aantal bouwlagen | 3 |
| Aantal kamers | 6 (waarvan 5 slaapkamers) |
| Aantal badkamers | 1 (en 1 apart toilet) |
| Ligging | Aan rustige weg Dichtbij openbaar vervoer In woonwijk Nabij school Nabij snelweg |
| Type | Achtertuin |
| Hoofdtuin | Ja |
| Oriëntering | Zuiden |
| Heeft een achterom | Ja |
| Staat | Prachtig aangelegd |
| Energielabel | A+ |
| Warm water | Centrale voorziening |
| Verwarmingssysteem | Vloerverwarming Warmtepomp |
| Ventilatie methode | Mechanische ventilatie |
| Keukenvoorzieningen | Inbouwapparatuur |
| Badkamervoorzieningen | Inloopdouche Toilet Vloerverwarming Wastafelmeubel |
| Glasvezelaansluiting aanwezig | Ja |
| Tuin aanwezig | Ja |
| Beschikt over een internetverbinding | Ja |
| Heeft rolluiken | Ja |
| Heeft schuur/berging | Ja |
| Heeft een dakraam | Ja |
| Heeft zonwering | Ja |
| Heeft ventilatie | Ja |
| Kadastrale aanduiding | Geldermalsen N 2072 |
| Perceeloppervlakte | 264 m² |
| Omvang | Geheel perceel |
| Eigendomsituatie | Eigen grond |